昌达建筑科技有限公司【官网】

热门关键词:昌达

您的位置: 主页 > 新闻中心 > 昌达动态
浙江昌达装配式别墅报价清单!
作者:昌达钢结构有限公司 发布日期: 2016-09-06
信息摘要:
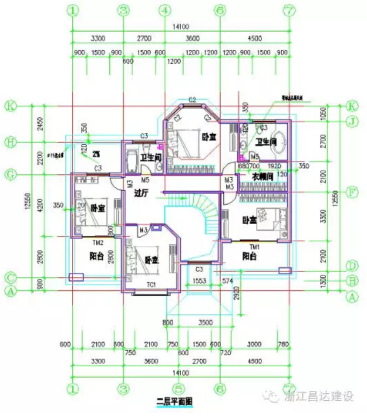
以工厂预制的构件和配件,在施工现场用机械装配而成的建筑,称之为装配式建筑。工厂化生产,机械装配现场作业,充分的体现了现代建筑的产业化特征。这种建筑方式提高了建造速...

    以工厂预制的构件和配件,在施工现场用机械装配而成的建筑,称之为装配式建筑。工厂化生产,机械装配现场作业,充分的体现了现代建筑的产业化特征。这种建筑方式提高了建造速度,减少了施工现场环境污染,提高了建造效率。装配式建筑的应用和发展对现代建筑业的意义重大。以下是我司最新研发的建筑结构与节能一体化(自保温)装配式集成房屋中的几例。
    结构与节能一体化(自保温)集成式房屋

      

     


 

 

 

 



 

 

 

 

 

 

 

 

 

 

 

 

 

 

 

 

 

 

 

 

咨询电话

151-5066-3888